Land for sale with 4 bedrooms, Richings Way, Iver

Richings Way, Iver, SL0

  • 4

  • 2

  • 1

Ref: 4511_UXB250172

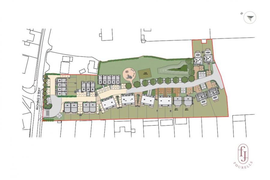
PLOT FOR SALE! Introducing Beechwood, a brand-new four-bedroom semi detached residence of 2152 sq. ft., part of The Fourells Collection — an exclusive gated development of just 18 exceptional homes, where timeless design, intelligent technology and carbon-negative living redefine modern luxury.

A Smarter Way to Own

The Fourells redefines the journey to ownership with a unique two-stage model:

Secure Your Plot – fix your investment at a transparent price.

Build Your Home – over 12 months, Pearcroft delivers a full turnkey build including architecture, engineering, utilities, and a 10-year warranty.

Unlock Immediate Equity – on completion, your finished home is worth significantly more than the total outlay.

This approach offers clarity, value, and built-in financial advantage.

Crafted for Modern Life

Every residence has been designed with meticulous attention to detail, blending craftsmanship with innovation:

Bespoke oak staircases and internal doors

Underfloor heating throughout

Designer kitchens with premium appliances, induction hobs and wine coolers

Luxury bathrooms with illuminated cabinets and high-quality fittings

Integrated smart home technology for lighting, appliances and energy management

EV charging points, solar panels and energy storage batteries

Beyond Net Zero

The Fourells is Iver’s first carbon-negative community. Each home actively eliminates carbon emissions, reduces energy use, and saves over three tonnes of CO annually — supported by a five-year no energy bill guarantee.

The Location – Richings Park, Iver

Balancing village charm with superb connectivity, The Fourells offers:

Fast links to London – Elizabeth Line at Iver Station: Paddington in under 30 minutes, Bond Street in 36 minutes, Canary Wharf in under an hour

Road access – M25, M40 and M4 within easy reach; Heathrow just 15 minutes away

Community spirit – traditional pubs, cafés, restaurants, sports clubs and local events

Education – access to Buckinghamshire’s selective grammar schools and leading independents

Natural surroundings – Colne Valley Regional Park, Black Park, Langley Park and Burnham Beeches all close by

The Investment Advantage

Transparent, fixed build costs

Significant savings compared with completed homes

Immediate equity uplift on completion

Bespoke design options tailored to your lifestyle

The Fourells Promise

A 10-year warranty

A five-year no energy bill guarantee

A secure, gated community

A home where heritage and innovation live side by side

Tenure: Freehold
Size: 2152 sq. ft. (approx.)
Development: The Fourells Collection – 18 carbon-negative residences

read more
  • Tenure

    Freehold
£
£
£
%
Years
per month
£

England & Northern Ireland - Stamp Duty Land Tax (SDLT) calculation for completions from 1 October 2021 onwards. All calculations applicable to UK residents only.

SIMILAR PROPERTIES

Has your property's value increased? To find out how much your property is worth

BOOK A PROPERTY VALUATION