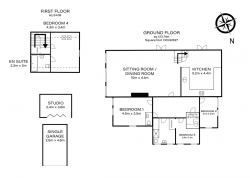
Detached House for sale with 4 bedrooms, Gislingham

Gislingham

  • 4

  • 2

Ref: 73461_101587020749

  • Fabulous Conversion of Former School
  • Wonderful Light and Airy Impressive Living Space
  • Very Social Space
  • Exquisite Gardens
  • Garden Office
  • Four Generous Bedrooms
  • Family Bathroom and Ensuite
  • Garage and Off Road Parking
  • New York Loft Apartment Style Living Space
  • Highly Recommended

Back to School. This clever renovation of a Victorian School House offers quirky loft style living, brimming with personality. With a huge open planned social space, four bedrooms, three on the ground floor and two bathrooms, the whole family can enjoy life here. With a pretty tiered courtyard garden plus idyllic studio/garden room, all so close to amenities and an easy commute, its New York Loft Living in Suffolk!

read more
£
£
£
%
Years
per month
£

England & Northern Ireland - Stamp Duty Land Tax (SDLT) calculation for completions from 1 October 2021 onwards. All calculations applicable to UK residents only.

SIMILAR PROPERTIES

£585,000

£585,000

Has your property's value increased? To find out how much your property is worth

BOOK A PROPERTY VALUATION