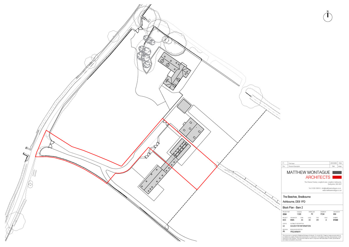
Land for sale , Brassington Lane, Bradbourne

Brassington Lane, Bradbourne, Ashbourne Derbyshire DE6 1PD

  • 0.5 acres

Ref: 17891_RX563986

Unique opportunity to build a 3189 sq. ft. luxury home with double garage in Bradbourne, Ashbourne. Approved planning, stunning countryside views, and a serene setting make it ideal for a bespoke dream home with space, privacy, and modern elegance
  • Land For Sale
  • Detailed Planning Permission Granted
  • Amazing Location
  • Stunning Far-Reaching Views
  • Hamlet of just Four Properties
  • Further Land Available
  • Site Fully Cleared and Ready to Build
  • Call to Register your Interest Today

A once-in-a-lifetime opportunity to build your dream home on a breathtaking plot at The Beeches, Brassington Road, Bradbourne, Ashbourne. This exclusive land approx 0.5 acres comes with approved planning permission for a stunning 2745 sq. ft. luxury residence with further double garage(approx 400 sqft) designed by renowned local architect Matthew Montague. With a possible option to purchase further land.

Set amidst the rolling Derbyshire countryside, the proposed farmhouse-style property is an architectural masterpiece, blending traditional elegance with modern sophistication. The design features expansive living spaces, four en-suite bedrooms( 1 on the ground floor), modern open reception rooms. A double garage ensures ample space for vehicles, while the sweeping driveway adds to the estate’s grandeur.

With panoramic views, this is the perfect setting for those seeking a bespoke home in an unrivaled location. Combining rural tranquility with convenient access to nearby towns, this is a rare chance to create a landmark residence tailored to your vision.

Opportunities like this are incredibly rare—secure your place in one of Derbyshire’s most desirable locations and build the ultimate luxury home.

FURTHER PLANS AND DOCUMENTATION AVAILABLE on request.

Disclaimer

All measurements are approximate and quoted in metric with imperial equivalents and for general guidance only and whilst every attempt has been made to ensure accuracy, they must not be relied on.

The fixtures, fittings and appliances referred to have not been tested and therefore no guarantee can be given and that they are in working order.

Internal photographs are reproduced for general information and it must not be inferred that any item shown is included with the property.

Whilst we carryout our due diligence on a property before it is launched to the market and we endeavour to provide accurate information, buyers are advised to conduct their own due diligence.

Our information is presented to the best of our knowledge and should not solely be relied upon when making purchasing decisions. The responsibility for verifying aspects such as flood risk, easements, covenants and other property related details rests with the buyer.

read more
  • Tenure

    Freehold
£
£
£
%
Years
per month
£

England & Northern Ireland - Stamp Duty Land Tax (SDLT) calculation for completions from 1 October 2021 onwards. All calculations applicable to UK residents only.

Has your property's value increased? To find out how much your property is worth

BOOK A PROPERTY VALUATION