Equestrian for sale with 4 bedrooms, High Street, Brasted

High Street, Brasted, Westerham, Kent, TN16

  • 4

  • 2

Ref: 79134965_OTF230042

  • 4 Bedroom Extended Detached Lodge House
  • Versatile Accommodation
  • Annex Potential
  • Sought After Village Location
  • 1.67 acres South-Facing Plot
  • Stables Paddocks & Outbuildings
  • Garaging & Ample Off Road Parking
  • Sevenoaks Station Approx. 4 Miles
  • Scope To Update
  • Vacant Possession

SOLD SUBJECT TO CONTRACT VIA FINE & COUNTRY
For sale by Modern Method of Auction; Starting Bid Price £775,000 plus Reservation Fee.
• For Sale by Auction – T & C’s apply
• Subject to an undisclosed Reserve Price
• Reservation Fee applicable
• The Modern Method of Auction

Heverswood Lodge is an individual four bedroom extended detached lodge house and offered with no onward chain. The property, which comes to the market for the first time in over 40 years, is located in the sought after village of Brasted, which offers many antique shops, public houses, a village shop and Tea Room. The accommodation offers the incoming purchaser an ideal opportunity to update and renovate as required, subject to the necessary building consents. It is versatile and therefore could be reconfigured and has annex potential. The property is approached via a side private driveway, which leads to the rear of the property. The 1.67 acres south-facing plot has ample off road parking, single detached garaging, superb, rear gardens with mature planting which creates a high degree of privacy and year round colour. Within the gardens, there are two green houses and several sheds. The garden part of the property leads to a five bar gate and adjoining paddocks created by post and rail fencing with the facilities of a stable block comprising two loose boxes and a hay store. We understand the rear part of the plot falls within the Greenbelt. To the front, there is a pedestrian gate and a paved path, which leads to the front door and areas of lawn. The grounds are a real feature and provide a lovely backdrop to the property. The rear plot having been used in the past for equestrian use it has this potential once again or something similar. The generous grounds could have other usages such as those buyers looking to have a more self-sufficient living by home growing. This vacant possession family home has bags of potential and is now looking for a new custodian that will now renovate and modernise this part period home and it is sure to suit an array of buyers, including growing families or those from London looking for an ‘escape to the country’ and a 'get away from it all' and experience village life, yet still been conveniently located for road and rail links into central London. The historic village falls in the Sevenoaks District of Kent.

Agent Note: We are advised the shared driveway access to the neighbouring property, Lodge Wood is adjacent to the boundary fence/wall of Heverswood Lodge.

Location    Heverswood Lodge is located in the popular village of Brasted which offers many antique shops, public houses, a village shop and Tea Room. Comprehensive Shopping: Sevenoaks (4.7 miles) provides supermarkets and other high street retailers as well as a multitude of Pubs and Restaurants. Westerham (1.7 miles) provides further local shops and restaurants. Bluewater (16.6 miles).

Directions    From junction 5 of the M25 take the A21 and head west at the second turn off onto the A25 towards Brasted and Westerham. Continue through Brasted High Street, passing the turning for West End on the left. Just before reaching Brasted Recreation Ground on the right, the driveway entrance for Heverswood Lodge can be found on the left.

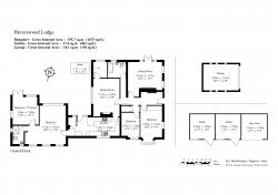
Entrance Hall

Sitting Room 16'1" x 15'7" (4.9m x 4.75m).

Dining Room 17'4" x 12' (5.28m x 3.66m).

Study 7'5" x 6'3" (2.26m x 1.9m).

Kitchen/Breakfast Room 16'1" x 15'7" (4.9m x 4.75m).

Main Bedroom 18'8" x 17'9" (5.7m x 5.4m).

Ensuite Shower Room

Bedroom 2 16'8" x 9'11" (5.08m x 3.02m).

Bedroom 3 11'1" x 8'5" (3.38m x 2.57m).

Bedroom 4/TV Room 18'8" x 17'9" (5.7m x 5.4m).

Bathroom

Outbuildings

Garage 16'2" x 12' (4.93m x 3.66m).

Stable 11'5" x 11'5" (3.48m x 3.48m).

Stable 11'5" x 11'5" (3.48m x 3.48m).

Hay Store 11'7" x 11'5" (3.53m x 3.48m).

Auctioneer's Comments    This property is for sale by the Modern Method of Auction. Should you view, offer or bid on the property, your information will be shared with the Auctioneer, iamsold. This method of auction requires both parties to complete the transaction within 56 days of the draft contract for sale being received by the buyers solicitor. This additional time allows buyers to proceed with mortgage finance (subject to lending criteria, affordability and survey). The buyer is required to sign a reservation agreement and make payment of a non-refundable Reservation Fee. This being 3.6% of the purchase price including VAT, subject to a minimum of £6,000.00 including VAT. The Reservation Fee is paid in addition to purchase price and will be considered as part of the chargeable consideration for the property in the calculation for stamp duty liability.

Further Auctioneer's Comments    Buyers will be required to go through an identification verification process with iamsold and provide proof of how the purchase would be funded. This property has a Buyer Information Pack which is a collection of documents in relation to the property. The documents may not tell you everything you need to know about the property, so you are required to complete your own due diligence before bidding. A sample copy of the Reservation Agreement and terms and conditions are also contained within this pack. The buyer will also make payment of £300.00 including VAT towards the preparation cost of the pack, where it has been provided by iamsold. The property is subject to an undisclosed Reserve Price with both the Reserve Price and Starting Bid being subject to change.

Referral Arrangements    The Partner Agent and Auctioneer may recommend the services of third parties to you. Whilst these services are recommended as it is believed they will be of benefit; you are under no obligation to use any of these services and you should always consider your options before services are accepted. Where services are accepted the Auctioneer or Partner Agent may receive payment for the recommendation and you will be informed of any referral arrangement and payment prior to any services being taken by you.

Transport Information    Mainline Rail Services:
Sevenoaks (4 miles) to London Bridge/Cannon Street/Charing Cross in about 32 minutes. Oxted (5.5 miles) to London Victoria.

Education    Primary Schools:
Sundridge
Westerham
Ide Hill

Secondary Schools:
Knole Academy
Judd Boys Grammar in Tonbridge
Weald of Kent and Tonbridge Girls Grammar in Tonbridge

Private Schools:
Sevenoaks and Tonbridge Public Schools
Sevenoaks and New Beacon Preparatory Schools Radnor House in Sundridge
Walthamstow Hall Girls School in Sevenoaks

Leisure Facilities    Golf at Westerham, Wildernesse, Knole and Nizels. Sevenoaks Swimming and Leisure Centre. Oxted Leisure Centre. National Trust houses and gardens.

Useful Information    We recognise that buying a property is a big commitment and therefore recommend that you visit the local authority websites for more helpful information about the property and local area before proceeding.

Some information in these details are taken from third party sources. Should any of the information be critical in your decision making then please contact Fine & Country for verification.

Council Tax    We are informed this property is in council tax band F, you should verify this with Sevenoaks Borough Council.

Tenure    The vendor advises us that this property is Freehold. Should you proceed with the purchase of the property your solicitor must verify these details.

Appliances/Services    The mention of any appliances and/or services within these sales particulars does not imply that they are in full efficient working order.

Measurements    All measurements are approximate and therefore may be subject to a small margin of error.

Opening Hours    Monday to Friday 9.00 am – 6.30 pm
Saturday 9.00 am – 6.00 pm
Viewing via Fine & Country.

Ref    SV/RM/JT/231019 - OTF230042/D1



read more
£
£
£
%
Years
per month
£

England & Northern Ireland - Stamp Duty Land Tax (SDLT) calculation for completions from 1 October 2021 onwards. All calculations applicable to UK residents only.

Has your property's value increased? To find out how much your property is worth

BOOK A PROPERTY VALUATION