Land for sale , Moreton Road Eydon Daventry , Northamptonshire

Moreton Road Eydon Daventry , Northamptonshire, NN11 3PA

  • 0

  • 0.21 acres

Ref: 17921_RX534531

  • Building Plot either self-build or custom-build with full planning application number 2024/1656/FULL
  • Situated on Moreton Road in the popular village of Eydon which has many amenities including pubs, village hall, sports field and an active community.
  • Approximately a quarter of an acre plot with established planting.
  • Close to Woodford Halse, Byfield and Daventry
  • No services connected to be arranged by the new owners
  • No onward chain
  • Tenure: Freehold

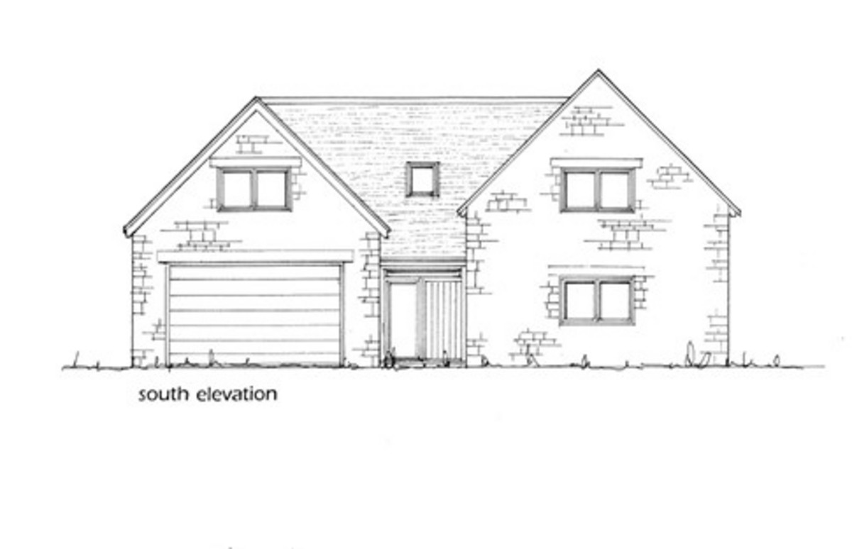
Situated in approximately a quarter of an acre in the popular village of Eydon is this attractive building plot for either self-build or custom build with full planning for a detached 4 bedroom property. The current design offers 4 bedrooms, kitchen/diner, sitting room, study, utility & cloakroom. Integrated garage with off road parking.

Full planning permission ref 2024/1656/FULL for a detached 4 bedroom self-build or custom build dwelling in Eydon. The site is located on the edge of this popular village and is approximately a quarter of an acre with mature planting. The site will need both services and access to be added and this is for any future purchasers to arrange.

Location
Eydon is a peaceful rural village situated in unspoilt undulating South Northamptonshire countryside. There are many social activities - a pub/restaurant, parish church, village hall with sports field, with the larger neighbouring villages of Woodford Halse and Byfield not far away for everyday needs. The market towns of Daventry and Banbury are nearby for supermarkets and more specialist requirements. A mobile grocer and butcher visit twice weekly. Communication links are found at Banbury with the M40 Junction 11 and national train services (London Marylebone from under 55 minutes).

Services, Utilities & Property Information:
Property Type: Plot of Land
Utilities: There are currently no services connected.
Mobile Phone Coverage - According to the signalchecker website 4G and 5G mobile signal is available in the area, we advise you to check with your provider.
Broadband Availability - According to the Ofcom Broadband checker website Ultrafast Broadband Speed is available in the area, we advise you to check with your provider.
Special Note: Planning Ref: 2024/1656/FULL
No services or access: This is to be organised by the new owner.
Tenure: Freehold
Directions: NN11 3PA
Garage Parking Spaces: 1
Off Road Parking Spaces: 2

Please click on the property video tab for full details of this property, or for more information or to arrange a viewing please contact Liz Teasdale or Nicola Loraine.

Disclaimer

All measurements are approximate and quoted in metric with imperial equivalents and for general guidance only and whilst every attempt has been made to ensure accuracy, they must not be relied on.

The fixtures, fittings and appliances referred to have not been tested and therefore no guarantee can be given and that they are in working order.

Internal photographs are reproduced for general information and it must not be inferred that any item shown is included with the property.

Whilst we carryout our due diligence on a property before it is launched to the market and we endeavour to provide accurate information, buyers are advised to conduct their own due diligence.

Our information is presented to the best of our knowledge and should not solely be relied upon when making purchasing decisions. The responsibility for verifying aspects such as flood risk, easements, covenants and other property related details rests with the buyer.

read more
  • Tenure

    Freehold
£
£
£
%
Years
per month
£

England & Northern Ireland - Stamp Duty Land Tax (SDLT) calculation for completions from 1 October 2021 onwards. All calculations applicable to UK residents only.

Has your property's value increased? To find out how much your property is worth

BOOK A PROPERTY VALUATION