Land for sale , Chadwick Hall Road, Bamford

Chadwick Hall Road, Bamford, Rochdale

Ref: 75991_32677208

  • Stable Hills, Chadwick Hall Road, Bamford, Rochdale
  • Building Land with Planning Permission
  • Planning for 2 Stunning Contemporary Homes
  • 2x 5 Bedroom, 3 Bathroom Properties Approved
  • Rochdale Planning Ref 20/00865/FUL Applies
  • AVAILABLE NOW

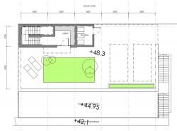
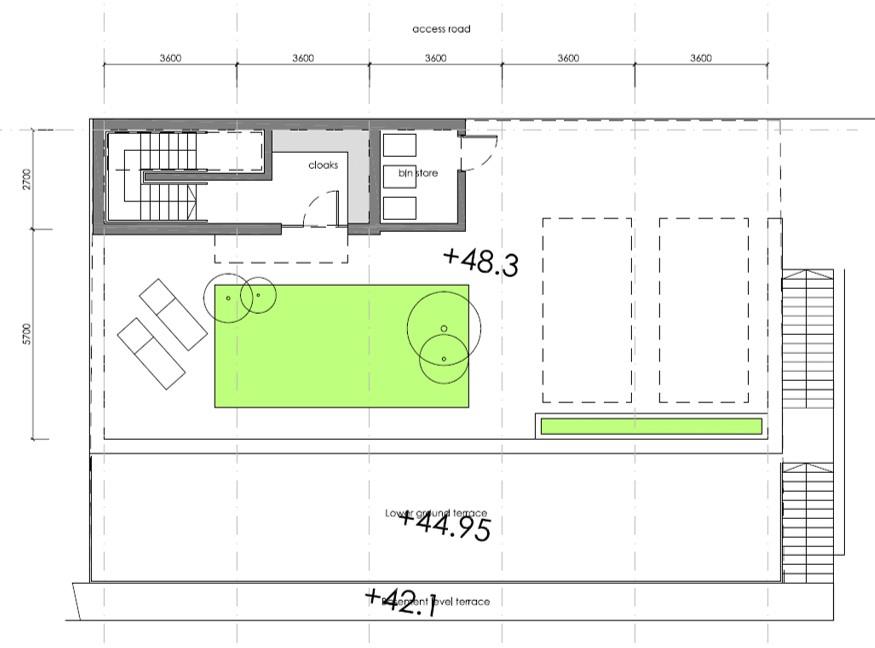
LAND WITH FULL PLANNING PERMISSION - 2 Contemporary homes in a highly sought after location and with superb open aspects. Outstanding designs approved for 5 bedroom, 3 bathroom properties with parking and terraces. Rochdale Planning Reference 20/00865/FUL Applies.

Chadwick Hall Road, Bamford, Rochdale is a plot of land with full planning permission granted for 2x newbuild homes with stunning contemporary designs. Each property approved has 5 bedrooms and 3 bathrooms, ample living space, modern outdoor terrace areas and off road parking too.

The site itself is situated overlooking lovely open aspects and is located in a highly desirable residential area. Surrounded by other homes of similar status, this is a great opportunity to create two truly outstanding properties. Rochdale Planning Reference 20/00865/FUL Applies.

Agents Notes - Council Tax: Exempt - Land
Tenure: Freehold
Stamp Duty: 0% up to £250,000, 5% of the amount between £250,001 & £925,000, 10% of the amount between £925,001 & £1,500,000, 12% of the remaining amount above £1,500,000. For some purchases, an additional 3% surcharge may be payable on properties with a sale price of £40,000 and over. Please call us for any clarification on the new Stamp Duty system or to find out what this means for your purchase.

Disclaimer F&C - Unless stated otherwise, these details may be in a draft format subject to approval by the property's vendors. Your attention is drawn to the fact that we have been unable to confirm whether certain items included with this property are in full working order. Any prospective purchaser must satisfy themselves as to the condition of any particular item and no employee of Fine & Country has the authority to make any guarantees in any regard. The dimensions stated have been measured electronically and as such may have a margin of error, nor should they be relied upon for the purchase or placement of furnishings, floor coverings etc. Details provided within these property particulars are subject to potential errors, but have been approved by the vendor(s) and in any event, errors and omissions are excepted. These property details do not in any way, constitute any part of an offer or contract, nor should they be relied upon solely or as a statement of fact. In the event of any structural changes or developments to the property, any prospective purchaser should satisfy themselves that all appropriate approvals from Planning, Building Control etc, have been obtained and complied with.

read more
£
£
£
%
Years
per month
£

England & Northern Ireland - Stamp Duty Land Tax (SDLT) calculation for completions from 1 October 2021 onwards. All calculations applicable to UK residents only.

Has your property's value increased? To find out how much your property is worth

BOOK A PROPERTY VALUATION