Projecto para moradia moderna T3+1 com cozinha/zona de estar e jantar em open space no rés-do-chão, garagem e arrumos na cave, piscina e jardins; já deu entrada no departamento de obras local. O design da moradia combina o melhor da arquitectura moderna com a eficiência.
Água da rede, esgoto e eletricidade na urbanização.
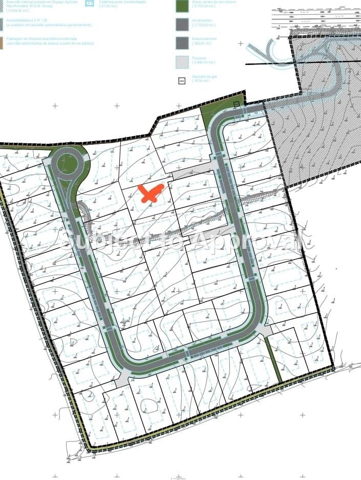
Excelente oportunidade para quem procura construir uma moradia moderna, ao seu gosto e perto das praias e comodidades.
A Fine & Country Algarve faz parte de uma rede internacional de escritórios F&C em mais de 300 localizações em todo o mundo, temos quatro escritórios no Algarve cobrindo toda a região de leste a oeste. Trabalhamos igualmente em estreita colaboração com os escritórios da Fine & Country noutros locais de Portugal e a nível internacional. No Algarve, a Fine & Country dispõe de um vasto portefólio de imóveis para venda e de uma equipa dedicada de profissionais com um profundo conhecimento do mercado.
*As características/comodidades mencionadas nesta descrição estão sujeitas a verificação entre vendedor e comprador.
Ein Projekt für eine 3+1 Schlafzimmer Villa mit pool, Garten und Garage wurde schon eingereicht im Bauamt. Der neuen Käufer kann entweder dieses Project nochmals umändern zu seinen eigenen Wünschen und nochmal im Bauamt einreichen oder das aktuelle Benutzen und bald anfangen zu bauen.
Anschlüsse an Stadtwasser, Kanalanschluss und Stromversorgung sind bereits vorhanden.
Für jeden, der nach einer neuen Villa in der Nähe vom Strand bauen möchte, ist dies eine ausgezeichnete Gelegenheit.
Fine & Country Algarve ist Teil des internationalen Fine & Country-Agenturnetzwerks mit über 300 Standorten weltweit. Wir betreiben vier Büros an der Algarve, die die gesamte Region von Ost bis West abdecken. Darüber hinaus arbeiten wir eng mit den anderen Fine & Country-Büros in Portugal sowie international zusammen. Fine & Country Algarve verfügt über ein umfangreiches Portfolio an zum Verkauf stehenden Immobilien und ein engagiertes Expertenteam mit umfassenden Marktkenntnissen.
* Die in der vorliegenden Beschreibung erwähnten Merkmale/ Ausstattungen unterliegen der Überprüfung zwischen Verkäufer und Käufer.
A project for a modern 3+1 bedrooms villa with open plan kitchen/living and dining area on the Ground floor, garage and storage in the basement, pool and gardens; has already been introduced in the local Building Department. The design of the villa captures the best of the modern architecture with the efficiency of the they layout and location.
Connections to city water, sewer, and electricity are by the plot already.
For anyone looking to build a new villa in an upcoming residential area, near the beaches all amenities and all international schools, this is an excellent opportunity.
Fine & Country Algarve is part of the international network of F&C offices in over 300 locations worldwide, we have four offices in the Algarve covering the whole region from east to west. We also work closely with the Fine & Country offices elsewhere in Portugal and internationally. In the Algarve, Fine & Country has a vast portfolio of properties for sale and a dedicated team of professionals with in-depth market knowledge.
* The feature(s)/equipment(s) mentioned in this description are subject to verification and agreement between the vendors and buyers.