Land for sale , Approved Project, Plot of Land

  • 810 m²

  • 324 m²

Ref: TER5514EB

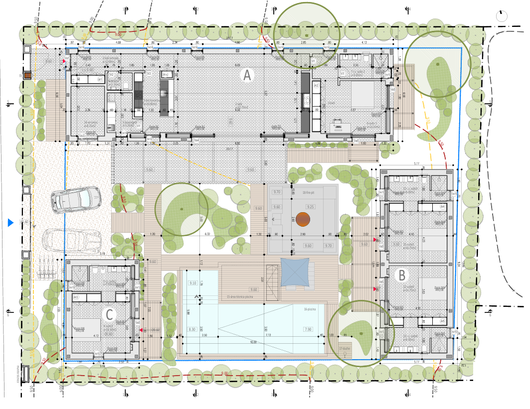
Plot for the construction of a single-family house, with an approved project, located in the most exclusive area of Herdade da Comporta, the village of Brejos da Carregueira de Baixo.

The plot is part of the region's prestigious “PESTANA BREJOS” allotment and has an area of 810 m² and construction possibilities of 324 m². It is surrounded by pure nature, just a short distance from the beaches, countryside, pine forest and neighboring villages. The architectural firm chosen is the best, GSS - GONÇALO SALAZAR DE SOUSA, ARQUITETOS, in which the concept of the villa to be built will be traditional.

Please note that for security reasons the map reference provided does not reflect the precise location of this property.

Read our guide to buying property in Portugal

Has your property's value increased? To find out how much your property is worth

BOOK A PROPERTY VALUATION