Idealmente localizada a apenas 5 minutos de carro das melhores escolas internacionais, e a 3,5 km da deslumbrante Praia da Marinha, perto de campos de golfe, praias diversas, restaurantes gourmet ou locais, supermercados e serviços essenciais.
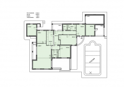
Os desenhos propostos prevêm o aumento do espaço habitável como está até um aumento de aproximadamente 600 m². A necessidade de renovação oferece uma oportunidade única para redesenhar e atualizar a propriedade de acordo com o seu gosto pessoal e padrões, tornando-a numa residência verdadeiramente excecional.
Ideal para aqueles que procuram deixar a sua marca numa propriedade, oferecendo a liberdade de criar uma casa personalizada com o seu arquiteto e adaptada às suas necessidades e preferências.
* As características / equipamentos mencionados nesta descrição estão sujeitos a verificação e acordo entre os vendedores e compradores.
Classe Energética B
Située dans un emplacement privilégié, à seulement 5 minutes en voiture des meilleures écoles internationales et à 3,5 km de la magnifique Plage de Marinha, cette maison offre un potentiel considérable de modernisation. À proximité de terrains de golf, plages, restaurants gastronomiques, supermarchés et services essentiels, elle constitue une excellente base pour des améliorations ou une petite ou grande extension.
Le vaste terrain offre de multiples possibilités de rénovation, avec la possibilité d'augmenter la surface habitable jusqu'à environ 600 m². C'est une occasion de mettre à jour et de personnaliser la propriété selon vos besoins, en la transformant en une maison familiale remarquable.
Cette villa est un choix parfait pour ceux qui souhaitent personnaliser une propriété dans un lieu de grande valeur, avec le potentiel de devenir la maison de vos rêves.
Die Immobilie ist ideal gelegen – nur 5 Autominuten von den besten internationalen Schulen entfernt und nur 3,5 km vom atemberaubenden Praia da Marinha entfernt. In unmittelbarer Nähe zu zahlreichen Golfplätzen, verschiedenen Stränden, Gourmetrestaurants, Supermärkten und anderen wichtigen Annehmlichkeiten gelegen, ist das Potenzial dieser Immobilie immens.
Das großzügige Grundstück bietet reichlich Gelegenheit für entweder eine kleinere Renovierung oder einen umfassenden Umbau oder sogar eine sehr viel größere Erweiterung mit Plänen zur Vergrößerung der Wohnfläche auf bis zu ca. 600 m² gezeichnet, die eine Umwandlung in ein beachtliches einstöckiges Einfamilienhaus vorsieht. Der Renovierungsbedarf bietet die einmalige Chance, die Immobilie nach Ihrem persönlichen Geschmack und Standard umzugestalten und zu einem wirklich außergewöhnlichen Wohnsitz zu machen.
Diese Villa ist eine hervorragende Gelegenheit für diejenigen, die einer Immobilie ihren eigenen Charakter verleihen wollen, und bietet die Freiheit, ein maßgefertigtes Haus nach ihren Bedürfnissen und Vorlieben zu gestalten. Mit ihrer fantastischen Lage und ihrem grenzenlosen Potenzial wartet diese Immobilie nur darauf, in Ihr Traumhaus verwandelt zu werden.
*Die in dieser Beschreibung erwähnten Merkmale/Ausstattungen unterliegen der Überprüfung und Vereinbarung zwischen Verkäufern und Käufern.
Ideally located just 5 minutes' drive from top international and German Schools, merely 3.5 km from the stunning Praia da Marinha, near golf courses, diverse beaches, gourmet or local dining, supermarkets and essential amenities.
The potential for this property is immense and has potential for a larger extention. Designs to increase the living space up to approximately 600 m², envisaging a transformation into a substantial single-storey family home haven been designed. The need for renovation offers a unique chance to redesign and upgrade the property to meet your personal taste, needs and standards, turning it into a truly exceptional residence.
The extensive grounds provide ample opportunity for either just a smaller renovation, or a much larger project extension.
Ideally for those looking to put their stamp on a property, offering the freedom to create a bespoke home tailored to your needs and preferences with their architects. With its fantastic location and boundless potential, this property is waiting to be transformed into your dream home.
* The feature(s)/equipment(s) mentioned in this description are subject to verification and agreement between the vendors and buyers.
Energy Class B