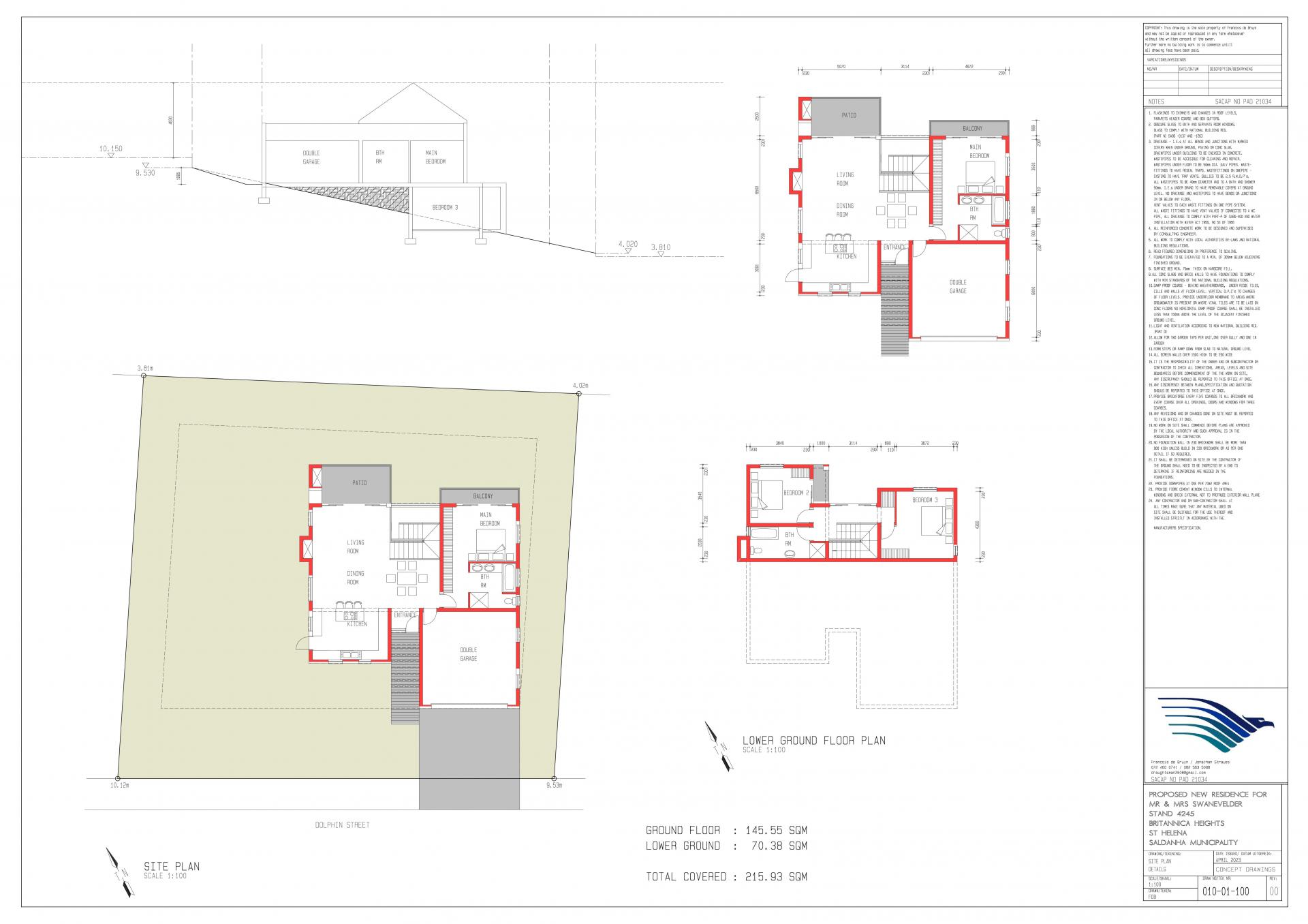
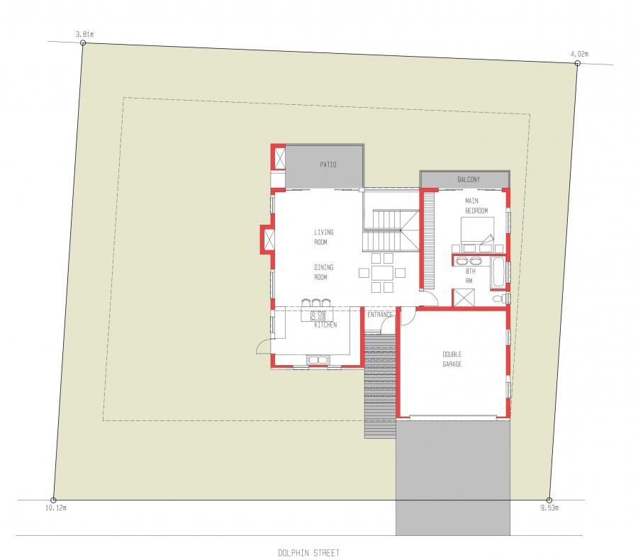
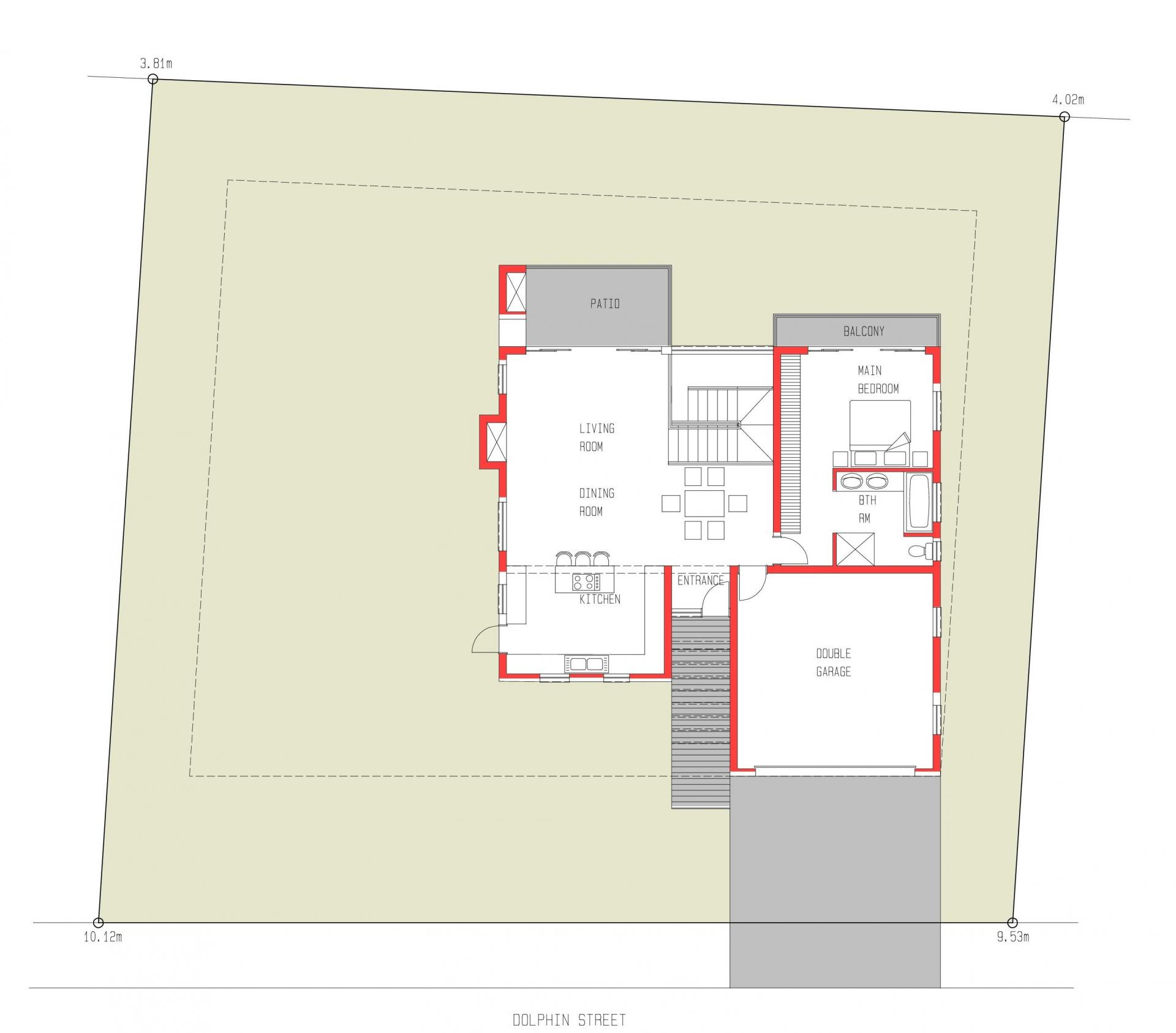
House for sale with 3 bedrooms, 2, Dolfhin

2, Dolfhin, Britannica Heights, St Helena Bay

  • 3

  • 2

  • 2

  • 711 m²

  • 215 m²

Ref: RLF27469

  • Built In Braai
  • Built in Wardrobes
  • Coastal Beach
  • Courtyard
  • Dishwasher Connection
  • Electric Garage
  • Fibre
  • Freestanding
  • Open Plan Kitchen
  • Oven And Hob

Discover the perfect Plot & Plan family home in the peaceful Britannica Heights with sea view.
*Agent base in St Helena bay*

Great attention to detail and free flowing floor plan makes this a wonderful place to live. The home is flooded with natural light throughout. A beautiful home where you can relax and enjoy the typical coastal lifestyle St Helena has to offer.
The house offers a floor size of 215.93 m2 and is positioned on a 711 m2 stand.

Property Overview.

* Modern open-plan kitchen with ample built-in cupboards, Centre island, modern light fittings and Dishwasher / washing machine connections.
* Large open-plan living area with exposed beams and fireplace. The lounge leads out onto the patio with a build-in braai.
* Dining area
* Large Master bedroom consists of an en-suite and lots of built-in cupboards.

Downstairs
• Two Spacious Guests bedrooms with built-in cupboard
• Family bathroom

Additional Features: Double automated Garage, built-in braai, Prepaid Electricity, paved driveway, solar geyser and tiles and throughout the house,

St Helena Bay is one of the most popular bays for whales to visit and calve. From August to November, the Southern Right Whales come into the bay to calve and can be viewed from the shore all around the bay. Humpback whales are also present in the area. St Helena Bay is located approximately 150km from Cape Town

Give me a call to schedule your own private showing.

read more
  • Tenure

    Freehold
Please note that for security reasons the map reference provided does not reflect the precise location of this property.
ZAR
ZAR
ZAR
%
Years
per month

Read our guide to buying property in South Africa

Has your property's value increased? To find out how much your property is worth

BOOK A PROPERTY VALUATION