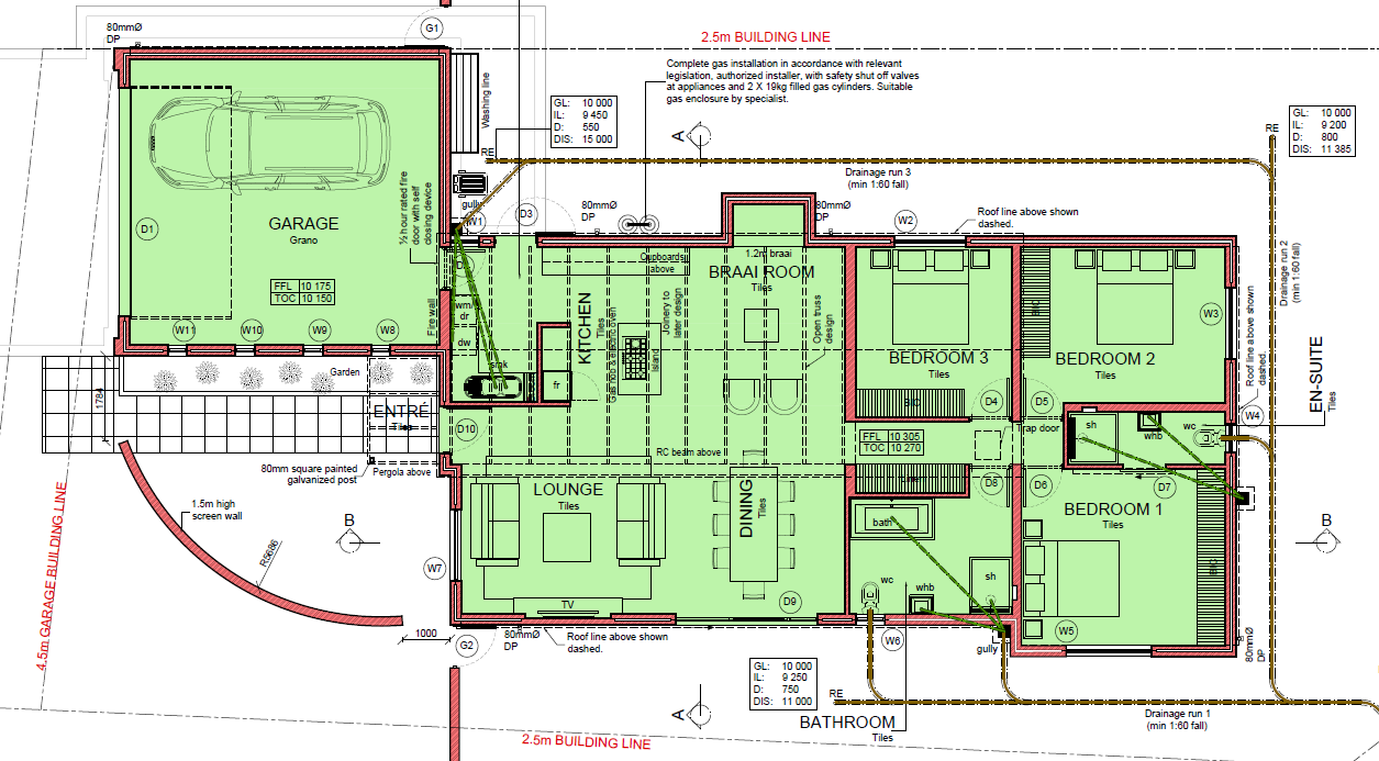
House for sale with 3 bedrooms, Myburgh Park, Langebaan

Myburgh Park, Langebaan

  • 3

  • 2

  • 2

  • 711 m²

  • 186 m²

Ref: RLF30376

Brand new 3 bedroom house for sale in Myburgh Park in Langebaan.
Brand-New 3-Bedroom Home for Sale .

Don't miss the opportunity to own this modern 3-bedroom home currently under construction – the perfect chance to secure your place in a growing community at today’s price.

This thoughtfully designed home will offer:

3 spacious bedrooms

2 modern bathrooms (main en-suite)

Open-plan kitchen, dining and lounge – ideal for family living and entertaining

Separate scullery for added convenience and storage

Covered patio (optional feature, depending on build stage)

Enjoy the freedom of a brand-new home with no transfer duty, saving you thousands in upfront costs.

Whether you’re a first-time buyer, looking to downsize, or investing in the future, this property combines style, functionality, and value.

📞 Contact us today to view the site, review the plans, and discuss customization options before completion!

read more
  • Tenure

    Freehold
Please note that for security reasons the map reference provided does not reflect the precise location of this property.
ZAR
ZAR
ZAR
%
Years
per month

Read our guide to buying property in South Africa

Has your property's value increased? To find out how much your property is worth

BOOK A PROPERTY VALUATION