Apartment to rent with 1 bedroom, Battledean Road,

Battledean Road,, Islington, London, N5

  • 1

  • 1

  • 1

Ref: 3662_ISL220027_L

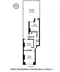
Few garden flats can match the unique advantage of this home, which features direct access through a private rear garden gate to the exclusive Highbury Terrace Mews. This sheltered pathway offers a tranquil and private route to the expansive greenery of Highbury Fields.

Upon entering, the hallway leads to a spacious reception room at the front of the property, with a large window overlooking the front garden. The double bedroom, located just behind, benefits from a window facing the side return, ensuring a peaceful retreat. At the rear, the kitchen diner opens directly onto the mature, low-maintenance garden, which is private and gated for added security.

read more

SIMILAR PROPERTIES

Has your property's value increased? To find out how much your property is worth

BOOK A PROPERTY VALUATION