Plot for sale , Birkby Lodge Road, Edgerton

Birkby Lodge Road, Edgerton, Huddersfield, West Yorkshire, HD2 2BG

Ref: 1556_941017

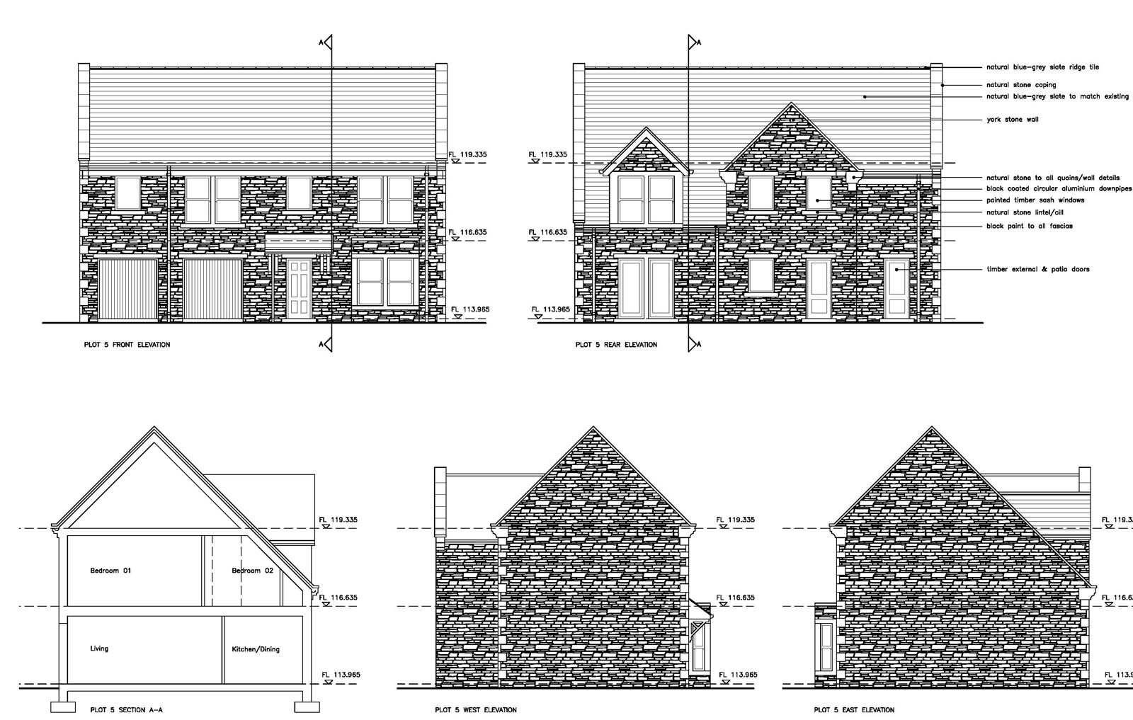
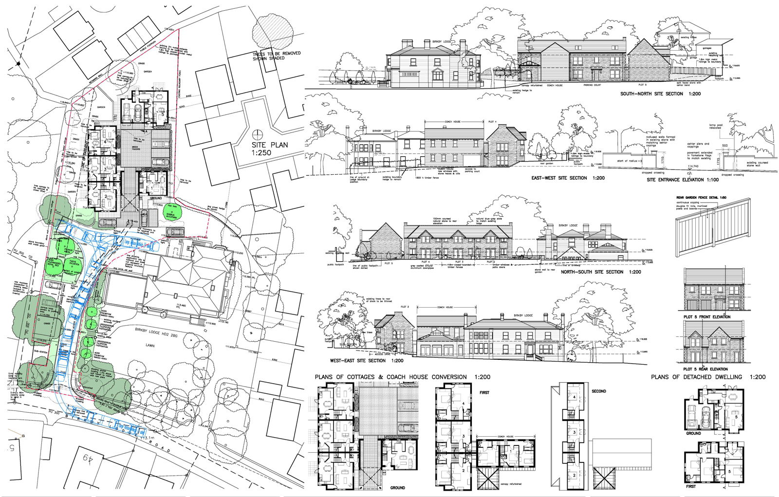
An exciting development opportunity located on on the outskirts of Huddersfield, extending to approx 1/2 an acre, the site has planning permission for 5 properties incorporating 3 new build town houses, 1 new build detached house and the conversion of a Grade II listed former Coach House. 

  • DEVELOPMENT WITH PLANNING PERMISSION
  • 3 X NEW BUILD TOWN HOUSES
  • 1 X NEW BUILD DETACHED
  • 1 X CONVERTED GRADE II LISTED COACH HOUSE
  • 1/2 AN ACRE PLANNING NUMBER (2010/65/92183/W2)
  • SOUGHT AFTER LOCATION
  • GROUNDS OF BIRKBY LODGE
  • LOCAL SERVICES & AMENITIES
  • M62 ACCESS
  • FANTASTIC DEVELOPMENT OPPORTUNTY

An exciting development opportunity, occupying a prime location on the outskirts of Huddersfield, within one of the towns most sought after suburbs, occupying a plot extending to approx 1/2 an acre within the grounds of Birkby Lodge a stunning period home,  designed by the renowned architect Edgar Wood. The site has planning permission for 5 properties incorporating 3 new build town houses, a new build detached house and the conversion of a Grade II listed former Coach House. 


A prime residential development site of approx 1/2 an acre with detailed planning permission for 5 stunning homes; each presenting spacious accommodation for the individual house types. This enviable scheme is located central to a popular locations, equidistant to the glorious idyllic settings of the surrounding architectural character and the M62 motorway connecting major commercial centres. An important development presenting a rare opportunity for the discerning end-buyer to acquire a unique home; the kind of which is in low supply for the surrounding area.


Local Area – HD2


The immediate location of the property is charming and highly sought after; an established suburb located close to the town centre yet within close proximity to open countryside, bordering Calderdale and well served by local services and facilities. For those wanting to enjoy open countryside, the Yorkshire Dales National Park is 30 miles to the north, and the Peak District National Park just 7 miles to the south, whilst the Holme Valley is on the doorstep Planning Number - (2010/65/92183/W2).


The development at Birkby Lodge is situated on the edge of the conservation area of Edgerton, a suburb west of Huddersfield town centre. The area has a range of local shops,  supermarkets, restaurants and schools including, St Patrick’s Catholic Primary School, and Greenhead College. Independent schools include The Mount School and Huddersfield Grammar School, which is ranked by The Sunday Times as a Top 100 Prep School. Huddersfield Royal Infirmary is also within a mile of the development site.


Infrastructure could not be better with the M62 being immediately accessible whilst only a short drive from rural surroundings, the centre of Huddersfield, Halifax and Brighouse. The centre of Lindley is only a short distance from the property and offers a vast array of local shops, bars and restaurants.


Ideally situated for commuting to the major business centres of Wakefield (15 miles), Leeds (18.7 miles), Manchester (28 miles) and Sheffield (28.5miles). Leeds Bradford Airport is under 21 miles away with Manchester Airport 36 miles distant. Huddersfield has a mainline train station with some direct links to Manchester, Liverpool, Sheffield, Leeds and Newcastle. Leeds has regular train services to London. 


Directions


From the centre of Huddersfield proceed out of town on New Road which becomes Edgerton Road. At the cross roads turn right onto Blacker Road and the left into Kirkby Lodge Road.


VIEWING: STRICTLY BY APPOINTMENT THROUGH THE SELLING AGENTS


IMPORTANT NOTE MISREPRESENTATION ACT 1967 & MISDESCRIPTION ACT 1991 - When instructed to market this property every effort was made by visual inspection and from information supplied by the vendor to provide these details which are for description purposes only. Certain information was not verified, and we advise that the details are checked to your personal satisfaction. In particular, none of the services or fittings and equipment have been tested nor have any boundaries been confirmed with the registered deed plans. Fine and Country or any persons in their employment cannot give any representations of warranty whatsoever in relation to this property and we would ask prospective purchasers to bear this in mind when formulating their offer. We advise purchasers to have these areas checked by their own surveyor, solicitor and tradesman. Fine and Country accept no responsibility for errors or omissions. These particulars do not form the basis of any contract nor do they constitute any part of an offer of a contract.

read more
  • Tenure

    Freehold
£
£
£
%
Years
per month
£

England & Northern Ireland - Stamp Duty Land Tax (SDLT) calculation for completions from 1 October 2021 onwards. All calculations applicable to UK residents only.

Has your property's value increased? To find out how much your property is worth

BOOK A PROPERTY VALUATION