Barn Conversion for sale with 3 bedrooms, Church Lane, Beaumont

Church Lane, Beaumont

  • 3

  • 2

Ref: 75951_103646013291

Welcome to a charming residence nestled in the picturesque setting of Church Lane, Beaumont, CO16 0AZ. This delightful three bedroom barn conversion seamlessly combines rustic charm with modern convenience, offering a perfect retreat for those seeking tranquillity and style.
  • BARN CONVERSION
  • 2147 SQ FT
  • THREE BEDROOMS
  • FAMILY BATHROOMS
  • TWO ALLOCATED COURTYARD PARKING SPACES
  • ONE CART LODGE SPACE
  • UNDERFLOOR HEATING
  • ENSUITE TO MASTER BEDROOM
  • CONVERTED TO A HIGH SPECIFICATION
  • UNIQUE PROPERTY

OVERVIEW Welcome to a charming residence nestled in the picturesque setting of Church Lane, Beaumont, CO16 0AZ. This delightful three bedroom barn conversion seamlessly combines rustic charm with modern convenience, offering a perfect retreat for those seeking tranquillity and style.  

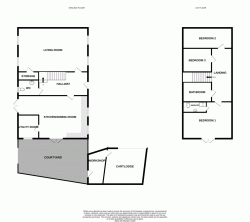
STEP INSIDE Upon entering the property, you are welcomed by a spacious hallway that leads to a generous kitchen/dining room. This standout feature boasts beautiful exposed wooden beams and a spacious, light-filled layout. Double doors open onto the garden, allowing natural light to flood the room, creating an inviting atmosphere perfect for both cooking and entertaining. Adjacent to the kitchen, a utility room provides extra storage and facilities, while a downstairs cloakroom adds further convenience.

The ground floor of this property seamlessly blends modern elegance with rustic charm. The living area, with its cosy yet contemporary ambiance, is enhanced by rich, neutral carpeting and large windows that invite an abundance of natural light. Underfloor heating manifolds ensure comfort and efficiency throughout.

Upstairs, the thoughtfully designed layout includes three cosy bedrooms, each featuring exposed beams and vaulted ceilings. The master bedroom offers an en-suite that combines ample space with soothing décor, while the luxurious bathroom boasts a freestanding bathtub and sleek fixtures, marrying functionality with a touch of indulgence.

Outside, step into a secluded courtyard, an ideal space for relaxation and gatherings. With its charming brick exterior and idyllic surroundings, this property exudes a warm and welcoming ambiance that is sure to captivate you. 

STEP OUTSIDE The property features a charming walled courtyard with rustic red brickwork, creating a cosy, private space. The smooth stone paving adds sophistication, perfect for gatherings or relaxation. Large sliding glass doors connect the indoors and outdoors, enhancing the flow of natural light and emphasizing space and tranquillity. Ample parking is to the front of the property within the charming courtyard. The property benefits from a cartlodge and workshop providing extra storage and working space.
 

LOCATION The property is located on Church Lane in the quaint village of Beaumont, CO16 0AZ. Nestled in the scenic countryside, it offers a peaceful and picturesque setting, ideal for those seeking tranquility. The village itself is rich in charm and history, providing a friendly community atmosphere. Despite its rural setting, Beaumont offers convenient access to nearby towns and amenities, striking a perfect balance between serene village life and accessibility to modern conveniences. For train services to London Liverpool Street, stations are available at Thorpe Le Soken, Wrabness, Mistley, and Manningtree, with direct trains taking approximately 55 minutes. 

read more
  • Tenure

    Freehold
£
£
£
%
Years
per month
£

England & Northern Ireland - Stamp Duty Land Tax (SDLT) calculation for completions from 1 October 2021 onwards. All calculations applicable to UK residents only.

SIMILAR PROPERTIES

Has your property's value increased? To find out how much your property is worth

BOOK A PROPERTY VALUATION