Property for sale with 12 bedrooms, West Sussex Farmhouse With Business Potential

West Sussex Farmhouse With Business Potential

  • 12

Ref: INA_INA240198

Own a unique opportunity on 5.8 acres. featuring a 4 bed flint farmhouse, five self-contained holiday cottages, staff accommodation, solar farm, planning for expansion granted. Endless business potential.
  • Flint Fronted 4 Bed Farmhouse
  • 5 self contained holiday cottages
  • Total plot approximately 5.8 acres
  • Offers various business opportunities
  • WATCH THE MOVIE TOUR
  • Bedsit/staff accommodation & Laundry Room
  • Planning granted for additional camping and camper van/caravan pitches/ 100 guest function area/ commercial kitchen/ shower & wc block
  • 8 Bay car port and extensive driveway/parking
  • Large Workshop/ Garden/ Machinery Store
  • Solar Farm

Nestled within 5.77 acres of breathtaking grounds, enveloped by the serene beauty of lush farmland, lies a truly exceptional offering: a distinguished complex of dwellings boasting a characterful 4-bedroom farmhouse alongside five self-contained cottages. But what truly distinguishes this property is its remarkable potential, unlocked by granted planning permission, ensuring every inch of its nearly 6-acre domain is primed for extraordinary transformation.

Further enhancing the property's versatility, planning permission has been secured to demolish the existing barn and replace it with a larger structure, creating a spacious function area capable of seating up to 100 guests, ideal for hosting special occasions and celebrations.

Additionally, approved plans include the transformation of one of the buildings into a modern shower and toilet block, enhancing convenience and comfort for guests. Another building is designated to become a commercial kitchen and storage room, catering to various events and gatherings.

Moreover, with planning permission granted for motorhome and camping hookups, this property offers a diverse range of accommodation options, catering to different preferences and budgets for various events and occasions.

Main Farmhouse
Step into an era of timeless elegance and contemporary comfort with this captivating farmhouse, showcasing exquisite brick and flint elevations dating back to circa 1900. Meticulously restored by its current owners, this property seamlessly harmonizes historic charm with modern conveniences, creating an enchanting retreat for discerning buyers.

Upon entry, the welcoming hall, adorned with rustic flagstone flooring and exposed brick walls, beckons you into a realm of warmth and sophistication. This expansive area offers versatile potential, ideal for a modern home office tailored to today's dynamic lifestyles.

Spanning the rear of the farmhouse, the inviting sitting room invites relaxation and entertainment within its open-plan ambiance. Exposed beams infuse rustic charm, while a captivating log burner serves as the focal point, fostering an inviting atmosphere. Adjoining this space, a tranquil seating area offers picturesque views of the sprawling gardens. While adjoining double doors lead to a snug. French doors open onto a raised decking area, seamlessly connecting indoor and outdoor living spaces.

At the heart of the home, the open kitchen is a culinary haven boasting ample storage, expansive workspace, and a central island perfect for memorable gatherings with family and friends. A concealed utility area adds practicality, while French doors beckon you to step outside and immerse yourself in the beauty of the surrounding garden.

Ascending to the first floor unveils four generously proportioned bedrooms, each exuding an airy ambiance and offering a haven of tranquillity. The principal bedroom boasts a substantial dressing area adorned with built-in wardrobes and access to a beautifully appointed ensuite shower room, where panoramic views of the surrounding farmland enhance the sense of serenity.

A guest bedroom offers its own ensuite shower room and access to a sunny balcony, providing a secluded escape overlooking the rear gardens. Two additional double bedrooms offer comfort and serenity, sharing access to a luxuriously appointed bathroom featuring a sumptuous freestanding roll-top bath.

The Cottages:
Indulge in the ultimate retreat at Flintstone Cottages, where each dwelling offers a unique blend of luxury and charm.
Nestled within the tranquil setting of the main farmhouse estate, these self-contained cottages have been meticulously converted to an exceptional standard, primarily from the outbuildings of the Victorian Flint-knapped Sussex Farmhouse. The outcome is a diverse array of accommodation options, meticulously crafted to meet every need and preference.

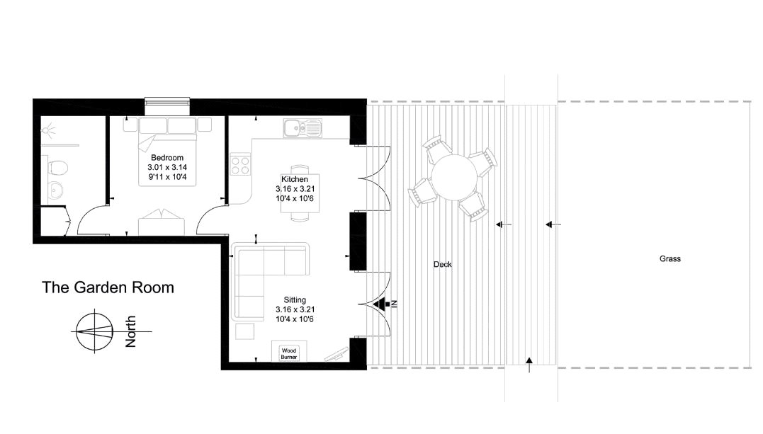
The Garden Room:
Nestled at the southern end of the building, this light-filled apartment boasts an open kitchen, dining, and relaxation area. A generously sized double bedroom with a luxurious ensuite completes the accommodation. Guests have the pleasure of accessing a decked area with views overlooking the adjacent garden.

The Barn:
Situated at the western end of the farmhouse, The Barn radiates character and charm. Its open-plan vaulted kitchen/living area features a wood-burning stove, exposed beams, and brick walls. Additionally, it offers a mezzanine bedroom or study, a spacious double bedroom with French doors leading to the garden, and a contemporary bathroom. The Barn provides access to a private decking and garden area through the open plan living space.

The Loft:
Perched on the first floor, The Loft presents a distinctive two-bedroom apartment, highlighted by its balcony offering picturesque views of the garden. The well-appointed kitchen seamlessly transitions into a dining area, while a separate sitting room provides direct access to the balcony. Designed for both relaxation and admiration of the scenery, this space is complemented by a superb shower room for added convenience.

The Cottage:
This expansive dwelling showcases a stunning open-plan kitchen/dining/family room, three double bedrooms, and a luxurious bathroom with a separate shower. Additional amenities include access to a raised decking area boasting views over the formal gardens.

The Lodge:
Newly constructed in 2013, The Lodge epitomizes modern elegance. Its open-plan kitchen/dining/family room is equipped with contemporary appliances. Three generously sized double bedrooms await, one with an ensuite facility, while the remaining two share an elegant shower room. Guests can also relish access to a private garden area.

Outside
The property features a variety of meticulously crafted outbuildings designed to enhance functionality and convenience. In addition to the dedicated laundry room, which streamlines guest changeovers, there is an open plan studio adjacent to the laundry room. This versatile space could serve as staff accommodation, providing a comfortable living area for onsite personnel.

Furthermore, a spacious workshop offers ample additional storage space. Moreover, a sizable undercover carport provides parking for numerous vehicles, ensuring ample accommodation for both residents and visitors.

The meticulously landscaped grounds enveloping the main farmhouse and cottages have been carefully curated to offer screening and privacy for all occupants. Expansive lawns provide a picturesque backdrop, creating a serene and inviting atmosphere for outdoor leisure and relaxation.

Additionally, the property prioritises environmental sustainability with the installation of 20kW solar panels. These panels generate approximately £11,248 per annum through Feed-in Tariff (FIT) payments, fostering both eco-conscious living and financial stability for the property.

Planning Permission
Full planning permission has been granted for several enhancements to the property:
• Demolition of the existing barn and construction of a larger structure to accommodate up to 100 guests for special occasions.
• Conversion of one building into a modern shower and toilet block for guest convenience.
• Transformation of another building into a commercial kitchen and storage facility for event catering.
• Approval for motorhome and camping hookups, offering varied accommodation options for events.
For full planning details, refer to Chichester District Council planning portal with the planning Reference: No: 23/02367/FUL

read more
  • Council Tax Band

    G
  • Tenure

    Freehold
  • EPC Rating

    F
£
£
£
%
Years
per month
£

England & Northern Ireland - Stamp Duty Land Tax (SDLT) calculation for completions from 1 October 2021 onwards. All calculations applicable to UK residents only.

Has your property's value increased? To find out how much your property is worth

BOOK A PROPERTY VALUATION