Plot for sale with 4 bedrooms, DEVELOPMENT OPPORTUNITY, Turton Tower Barn

DEVELOPMENT OPPORTUNITY, Turton Tower Barn, Off Greens Arms Road, Turton, Bolton

  • 4

  • 4

  • 2

Ref: 1613_32073285

LOCATION LOCATION LOCATION!

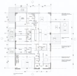
General Arrangement Plan:
- Entrance Porch
- Boot Room
- Plant Room
- WC / Cloakroom
- Inner Hall
- Utility
- Office
- 2 Car Garage
- Bike Store
- Cinema Room/Play Room
- Kitchen
- Dining Area
- Family Living
- Snug
- Master Bedroom / Dressing Room / Ensuite
- 3 Double Bedrooms With Ensuite

External:
. 6 External Terrace areas
. Additional 8 Car Parking
. 45 acres by separate negotiation
. Private Access Road
. Panoramic 360� Views
. Internal Floor Area 3120 Sq Ft
. Domestic Curtilage 25661 Sq Ft
. Woodland
. Lake

Serene Green Countryside - Set in serene green countryside, this former agricultural building has full planning permission for conversion to a spectacular and innovative four bedroom home, where 21st century luxury and rural living blend seamlessly, to create what will no doubt be a standout beautiful home inside and out. Another excellent opportunity here includes the ability to purchase an adjoining 45 acres of land by separate negotiation, including pastureland and woodland. If you are looking for a contemporary country lifestyle, while being only a short drive from amenities, Turton Tower Barn might just be the one for you.

A Legacy Property - This once in a lifetime opportunity to build your own Grand Design life has been designed with the utmost care and attention to detail by local architects, Studio SDA Architecture, and it's no surprise this architectural practice is multi-award-winning. The design is truly innovative and unique - a legacy property that is a statement of masterful modern design, while being subtly nestled into its countryside perch, high up on the hillside, complementing the natural surroundings just perfectly. The setting of woodlands, natural ponds and remarkable countryside is truly remarkable and provides an instant calming feel. Viewings are available strictly by appointment only - please call our office to arrange this.

Extraordinary Views - The warm and welcoming home once constructed will be as impressive inside as it is outside. An abundance of glass on the east elevation takes full advantage of the extraordinary views and frames the tranquillity of the countryside setting like a beautiful picture on the wall - though this one will change with the seasons creating an ever changing picture of nature!

It's rare a property with such breath-taking, undisrupted views like Turton Tower Barn comes to the market. From the site the silhouette of the Manchester skyline fills the horizon to the south, while miles of rolling green countryside including the most incredible view of the locally renowned Jumbles reservoir are witnessed in every direction. Combine the spectacular views with your very own woodland to the west behind Red Barn and for us this opportunity really is incredible. Turton Tower Barn has the opportunity to certainly provide a property of exceptional quality in a location that is unrivalled.

The Accommodation - In brief, internally the property will comprise of four double bedrooms, all with en-suites, plus a dressing room to the principal master bedroom, a gorgeously vaulted bright and airy, contemporary open plan living space including kitchen and dining area, plus a lounge area and additional sunset snug area with its very own glazed viewing gallery overlooking the views. And of course as the property is a self-build project, you will have the privilege of finishing the details of the interiors exactly as you wish.

The luxury nature of this fabulous property will benefit from other functional spaces and include a double garage, home office, play room/cinema room, utility, guest WC, and boot room.

Idyllic Countryside - Turton Tower Barn provides an idyllic setting for those looking for a true rural lifestyle, which is both private, peaceful, and well removed from suburban life. The terraces designed to the east elevation offer a stunning spaces to relax and unwind in the summer months, soaking up the bliss of the country setting, and creating precious memories with family and friends. And there is certainly enough safe space for the kids to run around in the fresh countryside air!

In addition to the country garden, this standout opportunity has the additional benefit to purchase 45 acres adjoining the property boundary, as shown on annotated imagery. The expansive 45-acre site is a combination of untouched pastureland and woodland.

Having this privilege of rural life while being only a quick drive from the wide variety of amenities and transport links in Bolton is certainly a rarity. Meanwhile the nearby villages of Edgworth, Chapeltown, Egerton and Bromley Cross provide an attractive selection of shops, pubs and restaurants. Not to mention Boltons prestigious private school being only 15 minutes door to door!

Off-Grid Living - Fed up of sky-high bills and having no control? Want to have your own utilities and energy supply? Owing to its rural position, Turton Tower Barn provides an apt opportunity to live off grid in your own self-sufficient, luxury eco home. Whether you choose solar panels, a natural source heat pump, maybe even wind energy, or an alternative, there's plenty of scope to not only take energy economics into your own hands, but to lend the planet a helping hand and reduce carbon emissions too.

On the contrary, if off-grid living isn't your thing, mains energy can be brought into the site as standard utilities are located nearby.

Planning Information - Further information on planning can be found on the Blackburn with Darwen Council website under reference number (10/21/1421).

read more
£
£
£
%
Years
per month
£

England & Northern Ireland - Stamp Duty Land Tax (SDLT) calculation for completions from 1 October 2021 onwards. All calculations applicable to UK residents only.

Has your property's value increased? To find out how much your property is worth

BOOK A PROPERTY VALUATION