Apartment for sale with 2 bedrooms, Calver Mill, Calver

Calver Mill, Calver, Hope Valley, S32

  • 2

  • 2

  • 1

Ref: 1555_200961

  • STUNNING DUPLEX APARTMENT
  • 2 X DOUBLE BEDROOMS
  • OPEN PLAN LOUNGE, DINING AND STUDY
  • BREAKFAST KITCHEN
  • SYMPATHETIC CONVERSION OF A GEORGIAN MILL
  • SCENIC VIEWS
  • LANDSCAPED COMMUNAL GROUNDS
  • GATED DEVELOPMENT
  • IDYLLIC OUTDOORS LIFESTYLE
  • SOUGHT AFTER COMMUTABLE LOCATION

A stunning Georgian mill conversion, sympathetically converted resulting in a landmark development to include this exceptional two double bedroom duplex apartment; offering generous accommodation laid out over two floors, retaining original 18th century period features and occupying a delightful position in the heart of the Hope Valley.


A wonderful home offering a wealth of charm and retained character, occupying the second and third floors of the original mill, resulting in accommodation approaching 2000 sqft, flooded with natural light, enjoying breathtaking views over the river Derwent and surrounding countryside, up onto Froggatt and Curbar Edge. The property is set within landscaped grounds including beautifully maintained communal grounds, has shared use of the gymnasium, secure gated parking and a lift to the second floor.


Enjoying an idyllic location, well served by facilities in the Hope Valley including shopping, bars and restaurants, regular public transport services and stunning scenery. Commercial centres including Sheffield, Chesterfield, Manchester and Derby are easily accessible. In short, a beautiful home, privately tucked away within treelined landscaped grounds, enjoying the most idyllic of outdoors lifestyle associated with the Peak District National Park.


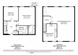
Ground Floor


Double security doors with intercom sit within an original stone arched feature to the Mill opening into the communal reception area which offers a delightful open area with seating, lift and staircase to the:


Second Floor


A panelled entrance door opens to a spacious reception hall providing an impressive introduction to the home, has a useful cloaks/storage cupboard beneath the stairs, a second cupboard which is home to the hot water cylinder tank and access to two double bedrooms and the house bathroom.


The principal bedroom suite is positioned to the front aspect of the property, has two Sash windows commanding a delightful outlook over the development, enjoying a scenic backdrop and view over the river Derwent. En-suite facilities comprise a three-piece suite finished in white, including a pedestal wash hand basin, a low flush W.C and a panelled bath with a shower over. The room has full tiling to the walls and floor, a heated chrome towel radiator, spot lighting to the ceiling and an extraction unit.


The second bedroom offers double proportions, has windows to the rear commanding a delightful outlook over the grounds towards the village of Calver.


The family bathroom presents a four piece suite, comprising a double step-in shower, a low flush W.C, a panelled bath and a pedestal wash hand basin. The room has tiling to the walls, an extraction unit, spot lighting to the ceiling, a towel radiator and an Amtico laid floor.


Third Floor


To the first floor a reception area has French doors opening directly into a generous living space, which forms the majority of the second floor, enjoying an open plan layout which incorporates a study, lounge and a dining area. A substantial room bursting with character, Sash windows to both front and rear aspects inviting an abundance of natural light indoors, whilst commanding a delightful outlook over scenic surroundings.


The breakfast kitchen has two windows to the rear, an Amtico floor and spot lighting to the ceiling. Presented with a range of furniture including base and wall cupboards with matching drawers, complimented by roll edge work surfaces, which incorporates a Stainless Steel single and drainer sink unit with mixer taps over. The room enjoys concealed down lighting and a complement of appliances which includes an integral oven with a four ring gas hob and extraction unit over, a dishwasher, a fridge freezer and a washer/dryer.


Externally


This luxury development is set within picturesque grounds with lovely gardens, woodland incorporating relaxing areas, with terraces, attractive mill ponds, races and walks along the riverside. There is shared use of the gymnasium with its feature mill race running through the middle, boxed in with glass walls. The interior of the gym looks through glass windows onto the two magnificent waterfalls. The apartment has two designated parking spaces to the rear of the mill. The property has a bike store and additional storage crate.


Additional Information


A Grade II listed Leasehold property with each home owning an equal share of the Freehold (each owner has once share in Calver Mill Management Company Ltd). The maintenance of the grounds, cleaning of the communal areas, building insurance etc. is included within the maintenance charge which we are informed by the vendor is approximately £3400 per annum. Mains gas, water, electricity and drainage. Fixtures and Fittings by separate negotiation.  Council Tax Band - G.


1967 & MISDESCRIPTION ACT 1991 - When instructed to market this property every effort was made by visual inspection and from information supplied by the vendor to provide these details which are for description purposes only. Certain information was not verified, and we advise that the details are checked to your personal satisfaction. In particular, none of the services or fittings and equipment have been tested nor have any boundaries been confirmed with the registered deed plans. Fine & Country or any persons in their employment cannot give any representations of warranty whatsoever in relation to this property and we would ask prospective purchasers to bear this in mind when formulating their offer. We advise purchasers to have these areas checked by their own surveyor, solicitor and tradesman. Fine & Country accept no responsibility for errors or omissions. These particulars do not form the basis of any contract nor constitute any part of an offer of a contract.


Local Area – Calver, S32


Directions


Turn off Baslow Road following the road behind The Bridge Inn. Turn onto Old Mill Lane and then right through the wrought iron gates into the development of Calver Mill. Turn left and then follow the road to the right towards the original part of the old development. Access is gained via the centre of the building through a security entrance door. A lift and staircase gains access to the second floor.


A charming village located within the Derbyshire Dales surrounded by glorious countryside resulting in breathtaking scenery associated with the Hope Valley and incorporating some of the Peak Districts most famous and historically important sites. Nearby attractions are in abundance and include Eyam Hall Museum, Chatsworth House, the villages of Bakewell and Castleton; famous for the Blue John Cavern and Peveril Castle.


Whilst the immediate locality is predominantly rural the village offers a good level of local services and amenities including three traditional pubs, two cafes and a supermarket. Neighbouring Hathersage has a train service whilst major commercial centres are easily accessible proving ideal for the daily commuter with Sheffield, Chesterfield and Manchester being easily accessible.


The village of Calver lies approximately ten miles to the southwest of Sheffield centre and has good access via road network and a train station which has regular services to both Sheffield and Manchester, as well as other Hope Valley villages. Surrounding Calver is the Peak District National Park with many varied and beautiful walks including Padley Gorge, the Longshaw Estate, Froggatt Edge, and Chatsworth. The river Derwent gently meanders through the bottom of the village providing opportunities for fly fishing or an evening walk.

read more
  • Council Tax Band

    G
  • Tenure

    Leasehold
£
£
£
%
Years
per month
£

England & Northern Ireland - Stamp Duty Land Tax (SDLT) calculation for completions from 1 October 2021 onwards. All calculations applicable to UK residents only.

Has your property's value increased? To find out how much your property is worth

BOOK A PROPERTY VALUATION